Оформление чертежей
- Конструктор
- Информация
При выполнении контрольных работ по черчению в институтах или профессиональных училищах очень важно правильное и аккуратное оформление чертежей.
Оформление чертежей по ГОСТ
Чертежи выполняют на листах определённых размеров, установленных ГОСТом. Это облегчает их хранение, создаёт другие удобства.
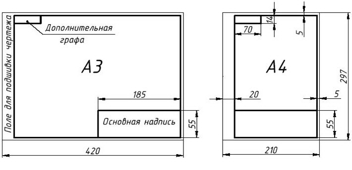
Форматы листов определяются размерами внешней рамки (выполненной тонкой линией).
Каждый чертёж имеет рамку, которая ограничивает поле чертежа. Рамку проводят сплошными основными линиями: с трёх сторон — на расстоянии 5 мм от внешней рамки, а слева — на расстоянии 20 мм; широкую полосу оставляют для подшивки чертежа.

Формат с размерами сторон 841x1189 мм, площадь которого равна 1м2, и другие форматы, полученные их последовательным делением на две равные части параллельно меньшей стороне соответствующего формата, ч принимаются за основные. Меньшим обычно является формат А4, его размеры 210x297 мм.

Чаще всего вы в учебной практике студенты используют именно форматом А4 или А3.
Каждому обозначению соответствует определённый размер основного формата. Например, формату. A3 соответствует размер листа 297x420 мм.
Ниже приведены обозначения и размеры основных форматов.
Обозначение формата Размер сторон формата, мм
АО 841x1189
А1 841x594
А2 420x594
A3 420x297
А4 210x297
Кроме основных, допускается применение дополнительных форматов. Они получаются увеличением коротких сторон основных форматов на величину, кратную размерам формата А4.

И если студенты думают, что на 5 лет обучения их мучения заканчиваются, то смею заверить: и в проектировании, и в конструировании оформление чертежей всегда будет иметь первостепенное значение.
Итак, я уже более 17 лет занимаюсь помощью студентам в решении задач по черчению, выполняю чертежи компас и другие. В современных ВУЗах Республики Беларусь для оформления заданий по машиностроению требуется построение 3d моделей. Для этого существует такое понятие как САПР для оформление чертежей.
САПР – это пакеты программ для автоматизированного проектирования и построения чертежей, они в свою очередь еще делятся на программы для инженерного анализа и подготовки производства. К ним относятся и чертежи компас.
Оформление чертежей в САПР
В наших ВУЗАХ чаще всего требуется оформление чертежей в Solidworks, AutoCAD, или при сдаче принимаются Компас 3d чертежи. Все программы обладают своими уникальными техническими и функциональными возможностями.
Чертежи в Компас 3D
Популярностью для построения несложных 3d моделей пользуется программа Компас-3d. Она имеет простое управление и не подходит для проектирования серьезных коммерческих объектов. Однако простота работы с программой делает чертежи компас доступными не только инженерам, но и строителям, дизайнерам. Также нередко можно увидеть чертежи Компас, отображающие детали автомобилей, морских судов и самолетов.
Компас 3d чертежи требуются при выполнении курсовых и дипломных работ, в расчетно-графических работах или просто для изучения различных САПР. Оформление чертежей порой может стать большой проблемой для студента, поэтому я предлагаю помощь в решении контрольных работ подобного вида.
Оформление чертежей в SolidWorks
Еще одной программой для оформление чертежей и 3d-моделирования является программа SolidWorks, она относится к среднему уровню САПР. Эта программа появилась в 90-х годах прошлого века, когда в мире назрела необходимость упрощать и оптимизировать труд проектировщиков. Производство требовало оформление чертежей и моделей в трехмерном пространстве.
Программа на сегодняшний день на высоком уровне удовлетворяет не только потребность в 3d моделировании, но и также имеет понятный интерфейс и большой набор возможностей. Программа SolidWorks активно используется на промышленных предприятиях автомобилестроения во многих страна мира. Во многом программа стала популярна благодаря хорошей синхронизации с Windows.
Каждый ВУЗ РБ устанавливает свои правила выполнения контрольных, курсовых и дипломных работ. Я выполняю любой уровень сложности заданий, чертежи компас или SolidWorks. Цены на мою работу Вас приятно удивят, к тому же они окажутся намного ниже, если вы закажете работу заранее.
Я сопровождаю Вашу работу до самой ее сдачи, чтобы Вы были спокойны и уверены в качестве выполненного задания.
Закажите черчение у меня и получите Вашу работу быстро, качественно и по приятной цене!









Комментарии
RSS лента комментариев этой записи